Tell Us About Your Dream Space And We Will Design It.
Send Us Your Measurements.
Let Us Show You How We Can Make It Happen.
Give Your Designs To A Contractor And Watch It Come To Life.
HD Renderings
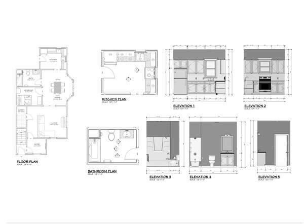
Floor Plans for Remodel














